Ascensor Hospitalario

La seguridad comienza contigo

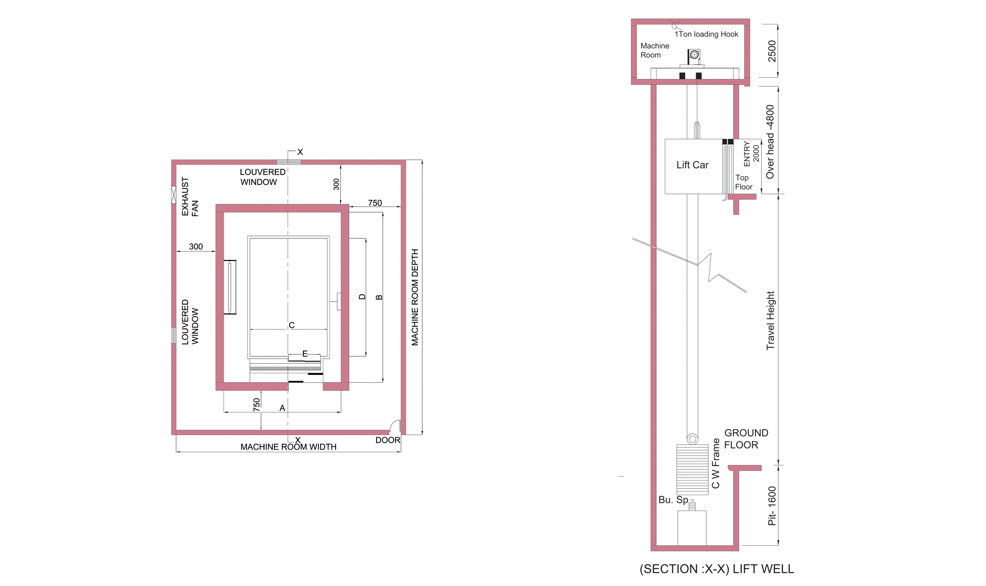
Ascensor Hospitalario

Los ascensores hospitalarios están diseñados para el traslado inmediato de pacientes a las instalaciones médicas. Disponemos de una amplia gama de dimensiones de cabina para satisfacer los diversos requisitos de un hospital moderno.

Hemos considerado todos los factores involucrados en el transporte de pacientes para diseñar los ascensores médicos más confiables para hospitales, residencias de ancianos, clínicas y otros institutos médicos.

Nuestros ascensores médicos son excepcionalmente suaves y silenciosos incluso en operaciones de alto rendimiento. Utilizan técnicas sofisticadas de medición de posición para mapear el hueco del ascensor junto con todos los niveles de piso, garantizando un alineamiento altamente preciso para un uso seguro y fácil. Esto es particularmente importante para personas mayores y con discapacidad, así como al cargar camillas y sillas de ruedas.

Beneficios y características

  • Diseño resistente a la corrosión que soporta desinfectantes usados en instalaciones médicas.

  • Sin interferencias electromagnéticas en equipos médicos.

  • Función de emergencia con batería que garantiza que ningún paciente quede atrapado.

  • Sistema de accionamiento VVVF para un transporte suave y seguro.

  • Iluminación suave en cabina para mayor comodidad y tranquilidad de los pacientes.

  • Diseño espacioso y panel de control auxiliar que garantiza accesibilidad universal.

Disponibles diversas opciones
Velocidad1.00 a 1.5 m/s
Tipo de cabinaVista unilateral / Vista triple / Vista semicircular
Acabado de cabina

Cristal con cabina pintada en polvo MS

Cristal con acabado en acero inoxidable pulido

Cristal con diseño en acero y acabado pulido

Acabado de puertas

Puertas automáticas pintadas en polvo MS

Puertas automáticas en acero inoxidable pulido

Puertas automáticas con diseño en acero inoxidable

Puertas automáticas con acabado dorado titanio

Puertas automáticas de cristal con marco de acero inoxidable

Botones del panelBotones microelectrónicos superficiales, Botones táctiles
Pantalla del panelDisplay LED de 16 segmentos
Visualización

Display digital LED de 7 segmentos

Display de matriz de puntos, Display LCD

Descargue Nuestro Catálogo Técnico Completo. Haga Clic Aquí